Главное меню:

Мебель в стиле LOFT

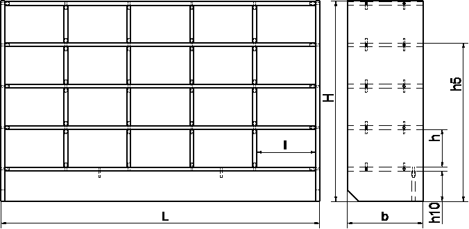
Шкаф для горшков ШГ выполнен из ламинированного ДСП. Торцы щитов шкафчика оклеены кромкой ПВХ толщиной 0,8 мм.
Согласно ГОСТ 26682-85 «Мебель для дошкольных учреждений. Функциональные размеры» минимальный размер ниши составляет 250 (ширина) х 160 (высота) мм.
Шкаф для горшков ШГ выпускается в 5-ти вариантах: на 10, 12, 15, 16, 20 ячеек
Габаритные размеры шкафов для горшков представлены ниже.


